Não selecionou qualquer imóvel como favorito.

Procurar imóveis


Procurar imóveis


Apartamento 2 Quartos

Cedofeita,Ildefonso,Sé,Miragaia,Nicolau,Vitória, Porto (Porto)

335 000 €

Voltar

Descrição

Apartamento localizado em pleno centro da cidade, numa das principais artérias do seu centro histórico.

Este projecto prima pelo uso de materiais de elevada qualidade e pela sua excelente localização, próxima de inúmeros pontos turísticos, em zona de forte comércio, mas também a apenas 2 minutos da cidade de Vila nova de Gaia e da Ribeira.

O EDIFÍCIO FORMOSA PARK é composto por 14 apartamentos e um estabelecimento comercial, com diferentes tipologias e distribuídos por dois edifícios, separados por um magnífico jardim interior.

Características da fracção:

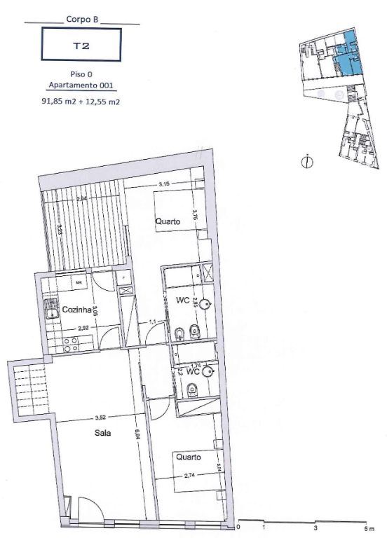
- Apartamento T2, no Piso 0 do edifício B
- Área de 104,40 m2
- Cozinha totalmente equipada
- Pré-instalação de ar condicionado


Para além deste imóvel, dispomos de mais imóveis que de certeza encaixam naquilo que pretende.
Mais informações sobre este ou outro imóvel e marcações de visita, contacte-nos.

Detalhes

  • PRTOR/00179
  • Compra
  • Novo
  • 104 m²
  • 91 m²
  • 2
  • 2
  • 2019

Localização

CN Porto Oriente

CHAVE NOVA - Mediação Imobiliária, Lda.

L. AMI 7142

Pedido de Informações

enviar

Características

Divisões

  • Quartos: ;
  • WC´s: ;